Dieses charmante freistehende Einfamilienhaus bietet eine einmalige Gelegenheit für Familien, Paare oder Investoren, die auf der Suche nach einem gemütlichen Zuhause mit viel Potenzial sind. Es wurde 1962 erbaut und verfügt über eine Wohnfläche von ca. 115 m², die sich auf zwei Etagen erstreckt. Zusätzlich gibt es einen ausgebauten Spitzboden mit einer Fläche von ca. 15 m², der jedoch aktuell nicht genehmigt ist. Das Haus ist voll unterkellert und bietet somit zusätzlichen Stauraum oder Potenzial für weitere Nutzungsmöglichkeiten.
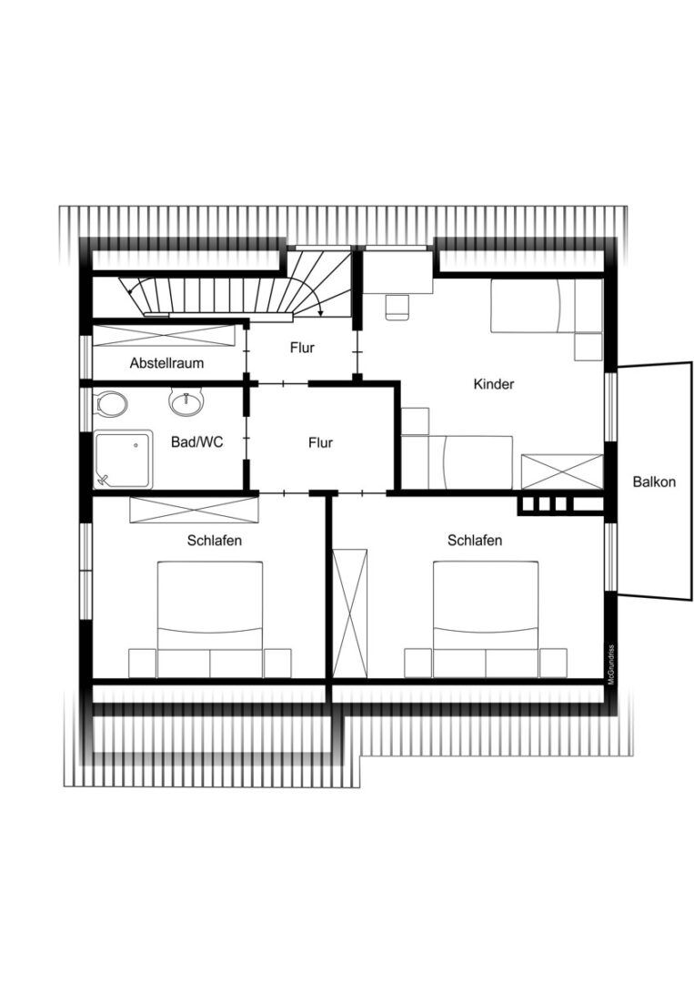
Das großzügige Grundstück umfasst ca. 670 m² und bietet viel Platz für Freizeit und Erholung. Das Haus verfügt über insgesamt 5 Zimmer, darunter 4 Schlafzimmer, sowie 2 Badezimmer mit Fenstern und Duschen. Das Badezimmer im Erdgeschoss wurde erst vor wenigen Jahren modernisiert und mit einer begehbaren Dusche ausgestattet, während das Badezimmer im Obergeschoss noch aus den 1990er Jahren stammt.
Die Immobilie ist mit einer Ölheizung ausgestattet, die aus ca. 1984 stammt. Die doppelverglasten Kunststofffenster wurden ebenfalls um 1984 eingebaut. Das Dach wurde um 2000 neu errichtet.
Zum Haus gehören insgesamt 3 Garagen, von denen sich eine im Haus selbst befindet und zwei weitere separat auf dem Grundstück stehen. Das Grundstück liegt in einer leichten Hanglage und bietet dennoch eine gute Nutzbarkeit für Garten- oder Freizeitaktivitäten.
**Ausstattung**
- Baujahr: ca. 1962
- Wohnfläche: ca. 115 m²
- Grundstücksfläche:ca. 670 m²
- Große und helle Wohnräume
- 4 Schlafzimmer für flexible Nutzung
- Badezimmer im Erdgeschoss modernisiert mit begehbarer Dusche
- Badezimmer im Obergeschoss aus den 90er Jahren
- Voll unterkellert mit viel Stauraum
- 3 Garagen (1 im Haus, 2 separat auf dem Grundstück)
- Ölheizung aus ca. 1984
- Doppelverglaste Kunststofffenster aus ca. 1984
- Dach neu aus 2000



