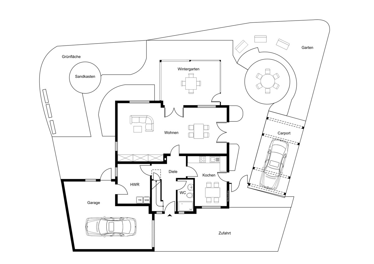
Dieses moderne und nachhaltige Einfamilienhaus wurde im Jahr 1999 erbaut und überzeugt durch eine Kombination aus hochwertiger Ausstattung, großzügigem Raumangebot und durchdachten, energieeffizienten Maßnahmen. Auf einer Grundstücksfläche von ca. 445 m² bietet die Immobilie mit einer Wohnfläche von ca. 149 m² ausreichend Platz für die ganze Familie.
Die besonderen Merkmale des Hauses, wie die Photovoltaikanlage, die Wärmepumpe, die Solaranlage und die Tesla Powerwall, machen das Objekt zu einem echten Highlight für umweltbewusste Käufer, die auf hohe Energieeffizienz und geringe Nebenkosten Wert legen.
Das Einfamilienhaus hebt sich durch zahlreiche nachhaltige Elemente hervor, die sowohl den Komfort erhöhen als auch die laufenden Kosten optimieren:
Photovoltaikanlage (2015):
Leistung: 8,9 kWp
Jährlicher Ertrag: 6.600 – 8.400 kWh
Die PV-Anlage liefert einen erheblichen Teil des Strombedarfs des Haushalts und trägt aktiv zur Reduktion der Energiekosten bei.
Tesla Powerwall (2018):
Speicherkapazität: 13,2 kWh
Mit der Erweiterung durch den Stromspeicher kann ein Großteil des erzeugten Solarstroms gespeichert und bei Bedarf genutzt werden, was die Abhängigkeit vom Netzstrom weiter reduziert.
Solvis Gas-Brennwertheizung (2021):
Leistung: 18 kW
Die moderne Gas-Brennwertheizung sorgt für eine effiziente und umweltschonende Wärmeversorgung.
Paradigma Aqua-Solar-Paket (2021):
Dieses System zur Solarthermie unterstützt die Warmwasserbereitung und sorgt für zusätzliche Energieeinsparungen.
Wärmepumpe Solvis LEA ECO 8 kW (2023):
Die Wärmepumpe ergänzt das Heizsystem und optimiert die Nutzung erneuerbarer Energien, was die Energieeffizienz weiter steigert.
Wintergarten (2021):
Ein hochwertiger Wintergarten mit Fußbodenheizung und neuen Fliesen bietet zusätzlichen Wohnraum. Die großen Schiebeelemente lassen viel Tageslicht herein und bieten einen schönen Blick ins Grüne.
Stromkosten lagen dadurch bei nur 70 € – ein attraktiver Vorteil für den neuen Eigentümer


