Dieses freistehende Einfamilienhaus vereint den Charme eines soliden Bestandsbaus aus dem Jahr 1935 mit den Vorteilen umfangreicher Modernisierungen und eines zeitgemäßen Anbaus aus 2015.
Auf einem beeindruckenden Grundstück von ca. 1.504 m² gelegen, bietet die Immobilie viel Platz für Familien, die Raum, Ruhe und ein großes Grundstück zu schätzen wissen.
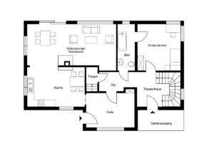
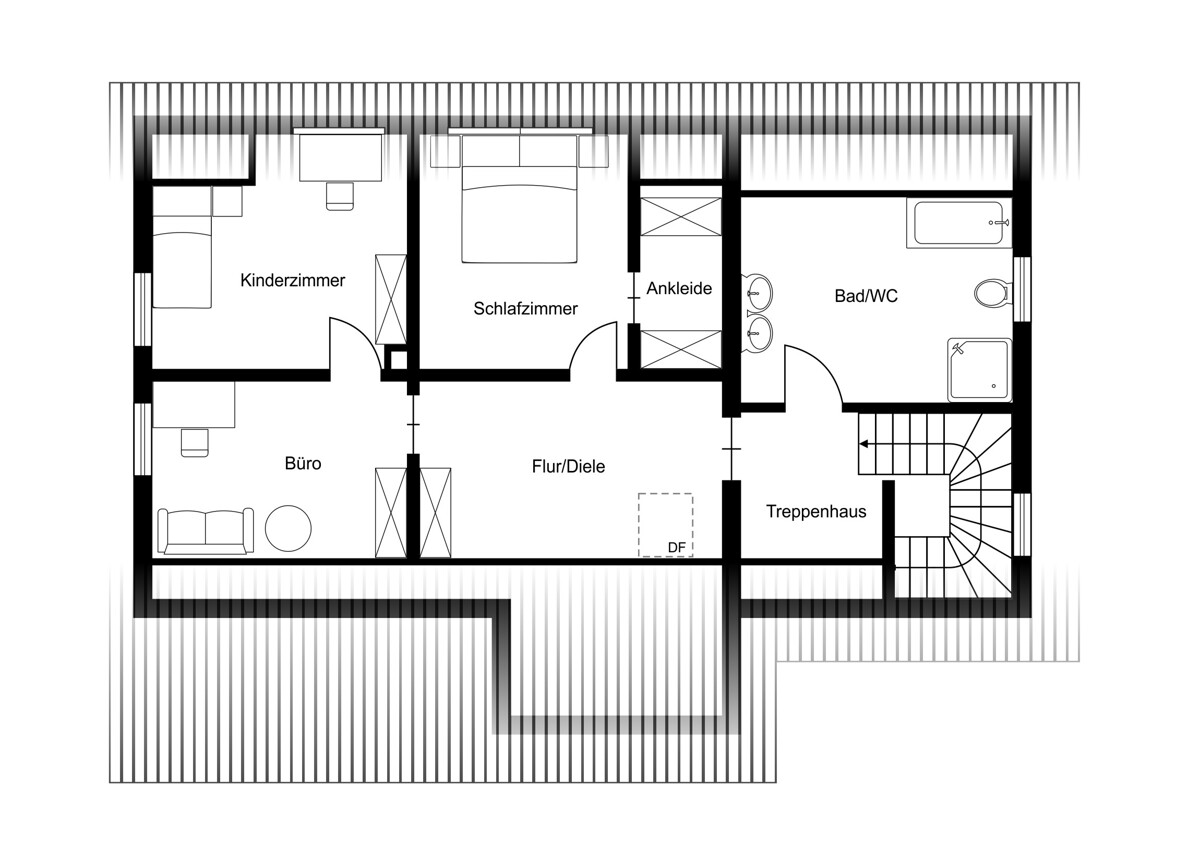
Die Wohnfläche von ca. 146 m² verteilt sich auf gut geschnittene Wohnräume mit einer angenehmen Mischung aus offenen Bereichen und Rückzugsorten.
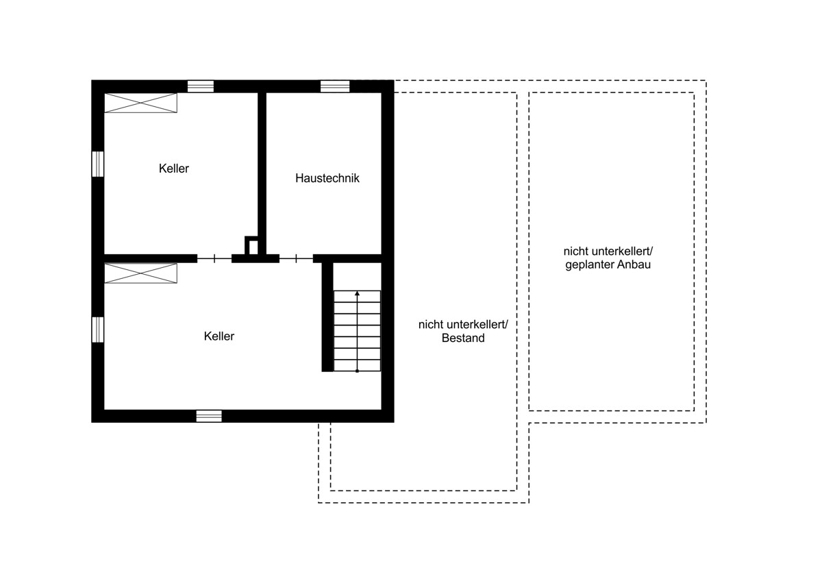
Ergänzt wird das Platzangebot durch einen ca. 50 m² großen Keller, der zusätzlichen Stauraum und Nutzfläche bietet.
Das Haus ist teilunterkellert.
Im Zuge der umfassenden Sanierung im Jahr 2016 wurden zahlreiche zentrale Gewerke erneuert. Besonders hervorzuheben ist der Anbau, bei dem Dach und Dämmung vollständig erneuert wurden.
Auch technisch befindet sich die Immobilie auf einem sehr soliden Stand: Gasheizung (2016), neue Heizkörper, dreifach verglaste Fenster, erneuerte Elektrik sowie Wasserleitungen sorgen für ein modernes und zuverlässiges Wohngefühl.
In Teilbereichen ist zudem eine Fußbodenheizung vorhanden, die den Wohnkomfort zusätzlich erhöht.
Ein weiterer Pluspunkt ist die moderne Einbauküche, die im Kaufpreis bereits enthalten ist und sich harmonisch in das Wohnkonzept einfügt – ideal für Familien und alle, die ohne zusätzlichen Aufwand einziehen möchten.
Für Fahrzeuge stehen eine Garage sowie ein extra hoher Doppelcarport zur Verfügung – ideal auch für größere Fahrzeuge oder zusätzlichen Stauraum.
Das weitläufige Grundstück bietet vielfältige Nutzungsmöglichkeiten: Garten, Spielflächen für Kinder oder Rückzugsorte im Grünen – hier lassen sich individuelle Wohnträume verwirklichen.
Ein Haus für Familien oder Paare, die ein großzügiges Grundstück, viel Platz und eine solide, modernisierte Bausubstanz suchen.



