Diese gepflegte 2-Zimmer-Wohnung aus dem Baujahr 2002 überzeugt durch eine durchdachte Raumaufteilung, modernen Komfort und eine altersgerechte Ausstattung.
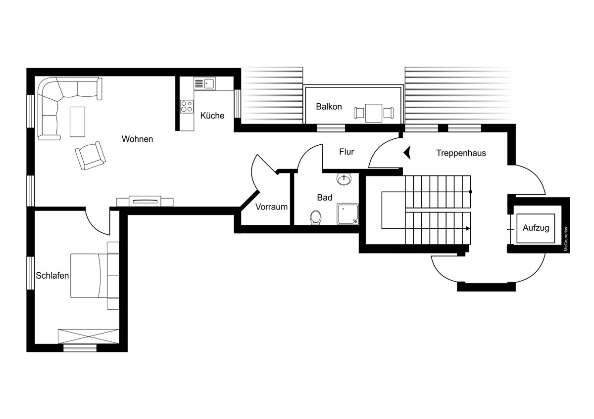
Der Flurbereich bietet direkten Zugang zum Balkon, der zusätzlichen Raum im Freien schafft.
Das Schlafzimmer ist gut geschnitten und bietet ausreichend Platz für eine angenehme Einrichtung.
Ein besonderes Highlight ist das Badezimmer mit bodentiefer Dusche, das den Alltag spürbar erleichtert und den Wohnkomfort erhöht.
Die vorhandene Fußbodenheizung sorgt zudem für eine gleichmäßige und angenehme Wärme in allen Räumen.
Ein Fahrstuhl im Gebäude ermöglicht einen komfortablen Zugang zur Wohnung und macht sie besonders attraktiv für alle, die auf Barrierearmut achten.
Ergänzt wird das Angebot durch einen Kellerraum sowie einen Stellplatz, der bequemes Parken direkt am Objekt ermöglicht.
Eine Wohnung, die Komfort, Funktionalität und Lebensqualität optimal miteinander verbindet.
