Zwei Wohnungen, viele Möglichkeiten – Willkommen in Rönkhausen!
Manche Häuser erzählen Geschichten – und dieses hier bringt über 100 Jahre Historie mit. 1908 massiv erbaut, steht dieses **2-Familienhaus** bis heute für solide Bauweise, Substanz und echtes Entwicklungspotenzial.
Schon beim ersten Blick fällt auf: **Hier ist nichts von der Stange.** Zwei getrennte Eingänge machen die Immobilie flexibel nutzbar. Ob als Mehrgenerationenhaus, Kapitalanlage oder Raum für ganz eigene Wohnideen – die Türen stehen offen.
**Die Fakten im Überblick**
* Baujahr: 1908
* Massive Bauweise
* Grundstücksgröße 182qm
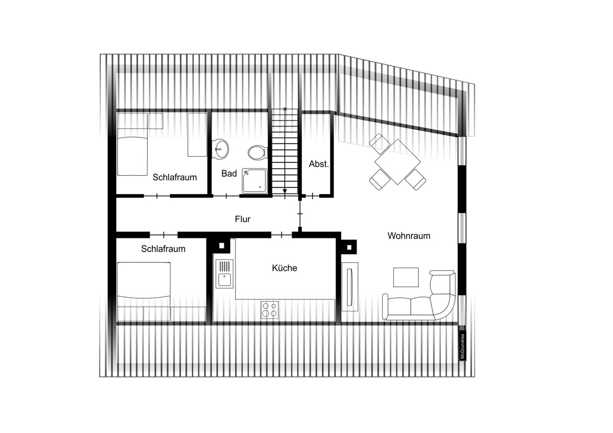
* Wohnfläche:
- Erdgeschoss ca.91,26 qm
- Obergeschoss ca. 85,99 qm
- Dachgeschoss ca. 59,88 qm
Gesamtfläche ca. 237,13 qm
* Fenster: teils Holzfenster (1988), teils Kunststofffenster (2008)
* Ölzentralheizung aus 1991
* Dach: Baujahr unbekannt
* Umfangreiche Renovierungen um 1991
* 2 separate Eingänge – Erdgeschosswohnung + Wohnung über 1. & 2. OG
* Option: Oberwohnung mit kleinem Umbau in zwei Einheiten teilen
* Kleiner Garten hinter dem Haus (alternativ als Stellplatz nutzbar - gepachtet )
Die **Erdgeschosswohnung** ist aktuell leer – ideal, um sofort selbst einzuziehen oder kurzfristig zu vermieten.
Die **Wohnung im 1. & 2. Obergeschoss** wird derzeit vom Eigentümer bewohnt. Mit einem geschickten Umbau lässt sich hier sogar eine dritte Einheit schaffen – perfekt für Kapitalanleger, die den Ertrag maximieren wollen.
Das Beste: Sie haben alle Karten in der Hand. Selbst einziehen und die zweite Wohnung vermieten? Oder beide Wohnungen neu vermieten und die Mieter nach Ihren Vorstellungen auswählen? Oder das Haus Stück für Stück weiterentwickeln und modernisieren?
Hier bestimmen Sie den Weg.
Ein Haus mit Geschichte. Ein Objekt mit Substanz. Und eine Immobilie voller Möglichkeiten.
Nutzen Sie die Chance – dieses Haus wartet auf neue Ideen und einen Eigentümer, der Potenzial erkennt.




