Modernes Wohnen in Bestlage von Lichtringhausen
Neuwertiges Einfamilienhaus der Firma Büdenbender mit Doppelcarport und großem Grundstück.
Dieses hochwertige Einfamilienhaus aus dem Jahr 2020 überzeugt durch moderne Architektur, energieeffiziente Ausstattung und ein stilvolles Wohnkonzept – perfekt für Familien, die ein neuwertiges Zuhause mit Komfort, Platz und ruhiger Lage suchen.
Das Haus wurde als Fertighaus der renommierten Firma Büdenbender errichtet und befindet sich in einem sehr gepflegten, nahezu neuwertigen Zustand.
Wohnkonzept & Ausstattung
Mit einer Wohnfläche von ca. 121 m² und zusätzlich ca. 10 m² Nutzfläche bietet das Haus ausreichend Platz für die ganze Familie.
Herzstück des Hauses ist der großzügige Wohn- und Essbereich mit Zugang zur Terrasse und in den Garten. Große Fensterflächen sorgen hier für viel Tageslicht und schaffen eine angenehme Wohnatmosphäre.
Die hochwertige Einbauküche mit Kücheninsel und allen Elektrogeräten ist bereits im Kaufpreis enthalten – ein echter Pluspunkt für den neuen Eigentümer.
Im Erdgeschoss befinden sich außerdem ein modernes Gäste-WC, der Hauswirtschaftsraum sowie der Zugang zum Doppelcarport mit praktischem Abstellraum.
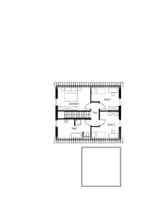
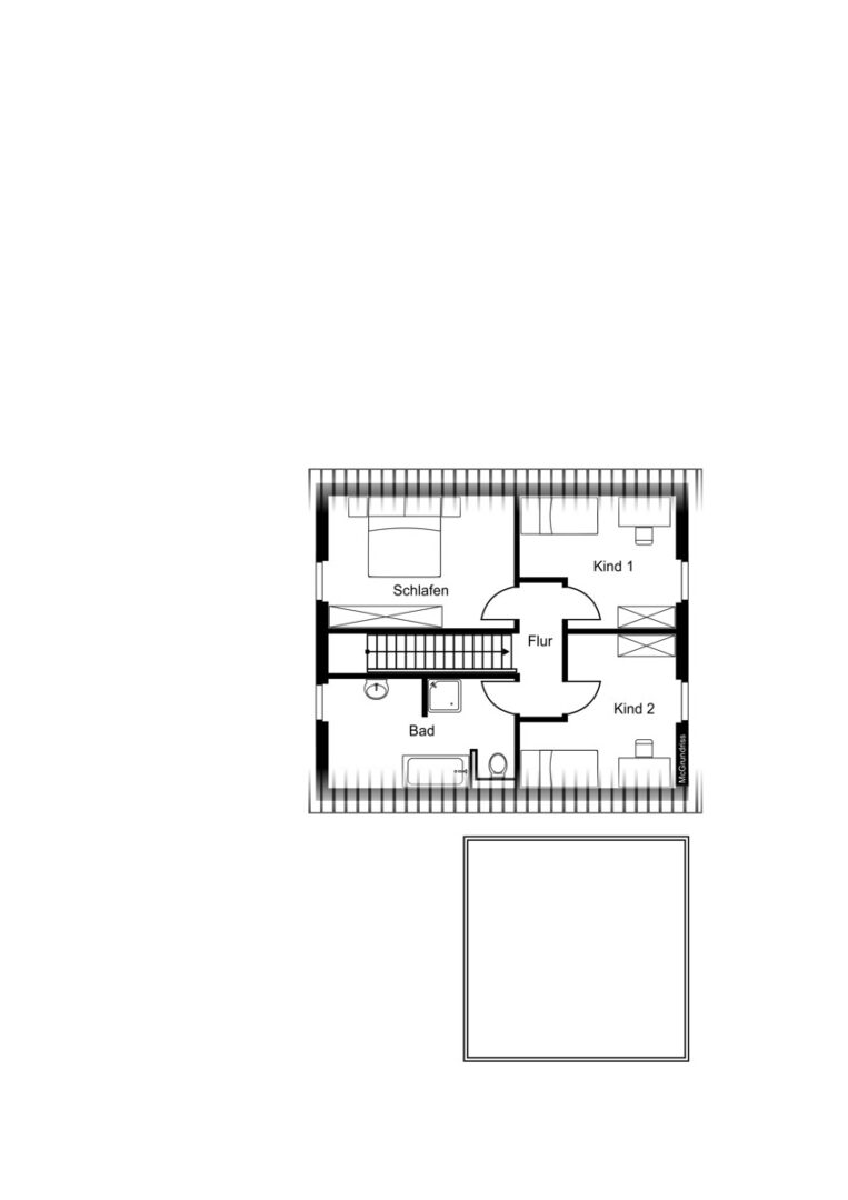
Das Obergeschoss bietet Platz für drei Schlafzimmer sowie ein großzügiges Badezimmer mit Wanne, Dusche und Fenster.
Energieeffizienz & Haustechnik
Die Kombination aus Wärmepumpe und Fußbodenheizung sorgt nicht nur für ein angenehmes Raumklima, sondern auch für niedrige Energiekosten.
Durch die 3-fach verglasten Fenster und die energieeffiziente Bauweise erfüllt das Gebäude bereits heutige Anforderungen an modernes, nachhaltiges Wohnen.
Außenbereich & Grundstück
Das großzügige Grundstück mit 806 m² bietet viel Platz für Freizeit, Familie und Erholung.
Die Terrasse und der Gartenbereich laden zum Entspannen, Spielen oder geselligen Beisammensein ein.
Der Doppelcarport mit Abstellraum fügt sich harmonisch ins Gesamtbild ein und bietet geschützte Stellplätze direkt am Haus.


