Das Reihenendhaus wurde im Jahr 1960 erbaut.
Seine solide Bauweise und seinem großzügigen Grundstück bietet eine einzigartige Ausgangslage für individuelle Gestaltungsideen. Das Modernisierungspotenzial macht dieses Haus zu einer attraktiven Option für Käufer, die den Charakter vergangener Jahrzehnte schätzen und gleichzeitig die Möglichkeit zur persönlichen Entfaltung suchen.
Das Haus präsentiert sich in einem sanierungsbedürftigen Zustand, was jedoch eine einzigartige Gelegenheit für kreative Gestaltungsideen bietet.
Das Reihenendhaus wurde im Jahr 1960 erbaut und strahlt den einzigartigen Charme dieser Ära aus.
Die massive Bauweise des Hauses gewährleistet nicht nur eine solide Konstruktion, sondern verleiht dem Gebäude auch eine gewisse Beständigkeit. Dies ist eine gute Basis für eine mögliche Sanierung und Modernisierung.
Auf einem großzügigen Grundstück von 354 Quadratmetern bietet das Anwesen ausreichend Platz für vielfältige Gestaltungsmöglichkeiten im Außenbereich. Der Garten lädt dazu ein, individuelle Ideen umzusetzen und eine grüne Oase zu schaffen.
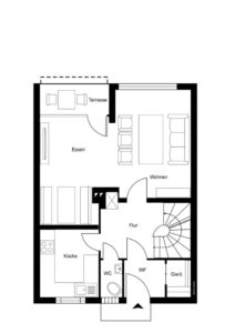
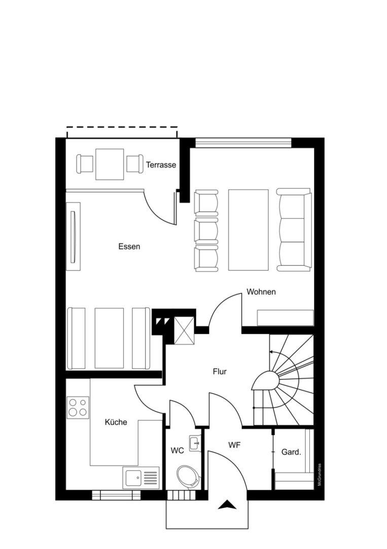
Mit einer Wohnfläche von ca. 90 Quadratmetern bietet das Haus ausreichend Platz für individuelle Wohnkonzepte. Die drei Schlafzimmer eignen sich ideal für Familien oder als Arbeitszimmer.
Die Ölzentralheizung aus dem Jahr 2020 sorgt für eine zuverlässige Beheizung des Hauses.
Ein Balkon ergänzt das Wohnambiente und bietet einen gemütlichen Platz im Freien, um die frische Luft zu genießen.
Das Haus ist voll unterkellert, was zusätzlichen Stauraum und Raum für Hobbyaktivitäten bietet.



