Diese attraktive Wohnung befindet sich auf der mittleren Etage eines 3-Familien-Hauses und bietet eine angenehme Wohnatmosphäre mit nur einem weiteren Treppenhaus-Mitbenutzer. Die Räumlichkeiten zeichnen sich durch ihre lichtdurchflutete Gestaltung aus und eignen sich ideal für Paare oder Familien.
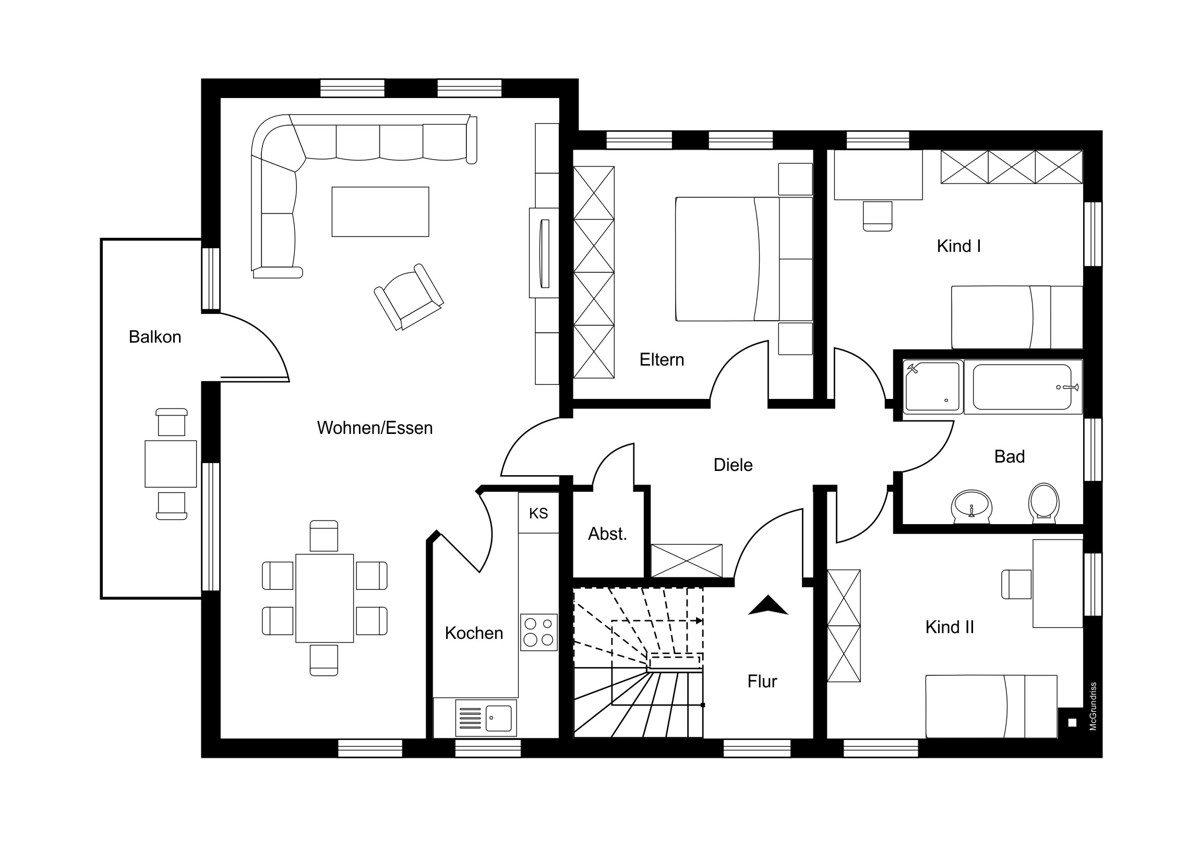
Die Wohnung verfügt über insgesamt 4 Zimmer und großzügige 103 Quadratmeter Wohnfläche. Die kluge Raumaufteilung ermöglicht vielfältige Nutzungsmöglichkeiten. Neben den klassischen Kinderzimmern bietet sie Raum für ein Büro oder ein Gästezimmer, was der flexiblen Lebensplanung entgegenkommt.
Ein besonderes Highlight dieser Wohnung ist der Südbalkon, von dem aus man einen Blick ins Grüne genießen kann. Die Wohnung ist sehr hell und gut möblierbar, was ein angenehmes Wohngefühl schafft.
Innen präsentiert sich die gut möblierbare Wohnung sehr hell - dazu der Balkon mit einem Blick ins Grüne.
Sie finden in 4 Zimmer, großzügige über ca. 103qm. Die Raumaufteilung bietet die Möglichkeit neben den klassischen Kinderzimmern auch Raum für Büro oder Gästezimmer zu schaffen. Knapp 40qm Wohn-Essbereich inklusive.
Die Wohnung ist zur Zeit vermietet und steht für Besichtigungen nach Absprache zur Verfügung.
Die derzeitigen Mieteinnahmen betragen 10.080€ p.a. inkl. Garage. Der Mietvertrag ist indexiert, die Miete kann der Preissteigerung angepasst werden.
Die Garage sowie 2 Stellplätze können zusätzlich mit erworben werden.
Bei dem Grundstück handelt es sich um ein Erbbaugrundstück. Der Erbbauzins beträgt zur Zeit 956,28€ im Jahr.
