Diese attraktive Terrassenwohnung befindet sich in einem gepflegten Wohnkomplex mit insgesamt 21 Wohneinheiten, aufgeteilt auf zwei Wohngebäude.
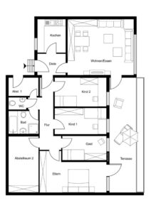
Dank der großzügigen Wohnfläche von ca. 115 m² bietet sie viel Platz für Familien oder Paare mit einem gehobenen Platzbedarf. Der große Balkon lädt zum Entspannen und Genießen ein.
Die Garage, die sich oberhalb des Grundstücks befindet, ist über eine Treppe erreichbar. Das innenliegende Badezimmer wurde bereits modernisiert und verfügt über eine Badewanne, eine Dusche sowie eine Lüftung. Die vorhandene Einbauküche ist ein weiteres Highlight dieser charmanten Wohnung.
Objektdaten:
- Objekttyp: Terrassenwohnung
- Baujahr: 1982
- Wohnfläche: ca. 115 m²
- Zimmer: 4
- Balkon: Großer Balkon mit viel Platz für entspannte Stunden im Freien
- Garage: Oberhalb des Grundstücks gelegen, erreichbar über einige Treppen
- Heizung: Gaszentralheizung aus Baujahr 2012
- Fenster: Kunststofffenster aus 1988 im Wohnzimmer (zweifach verglast); Kunststofffenster aus 1990 in den Schlafräumen
- Dach: Erneuert in ca. 2013
- Nebenkosten: ca. 260 € monatlich zzgl. Rücklagen von ca. 125 € monatlich
Ausstattung:
**Einbauküche: Vorhanden, gepflegt und funktional
**Badezimmer: Innenliegendes Bad mit Badewanne, Dusche und Lüftung; vor einigen Jahren modernisiert

